Lanehead Cottages, Richmond

4 bedroom Semi-detached house for sale

£475,000

  • 4 bedrooms
  • 2 bathrooms
  • 2 receptions
  • Key Information:
  • Council Tax: B
  • Heating: Oil

Key Features

  • AMAZING VIEWS
  • ACCESSIBLE COUNTRYSIDE LOCATION
  • OPEN PLAN LIVING
  • BI-FOLD DOORS
  • PADDOCK AND GARDENS
  • MUST BE VIEWED

Description

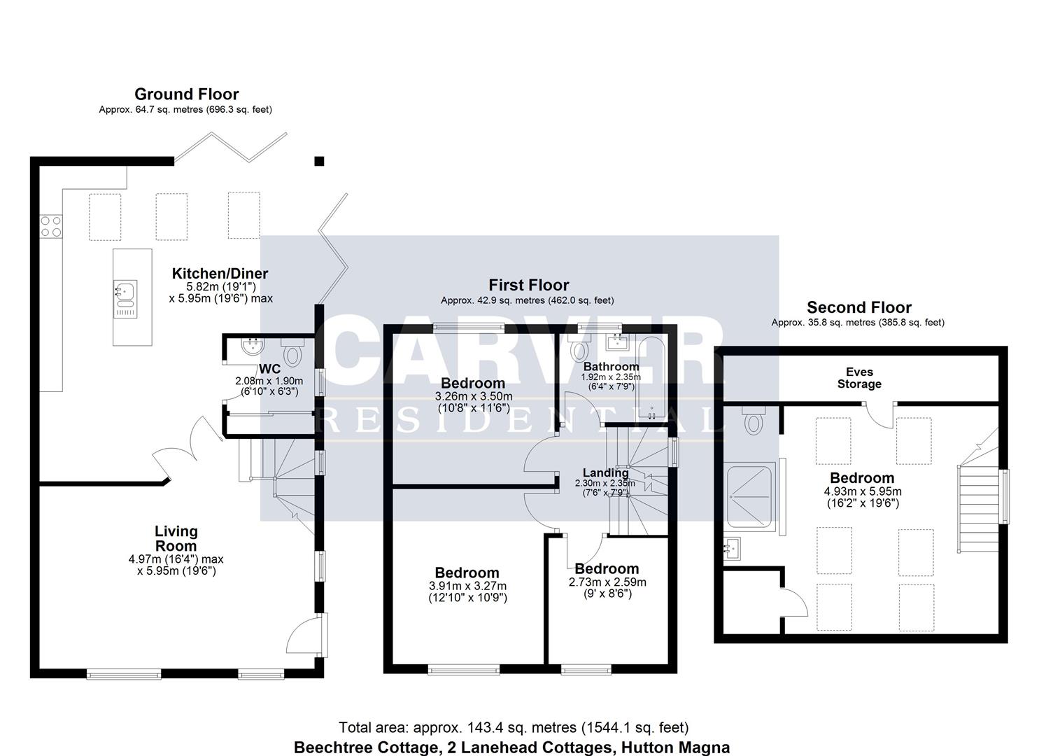
This wonderful rural cottage comes to market CHAIN FREE, with a wonderful layout and size commanding a magnificent rural setting with extensive views to the east, south and west of the property across adjoining countryside. Set over three floors the internal accommodation consists of a generous living room and a magnificent living/kitchen with corner bi-folding doors opening to the adjoining timber decked area. The kitchen is fitted with a comprehensive range of floor and wall units with integrated appliances with further natural light coming from three Velux roof windows. A WC completed the ground floor accommodation. The first floor provides three excellent bedrooms and a family bathroom with the attic converted into a magnificent master bedroom with en-suite shower area. The property has been significantly refurbished including the provision of a central heating system, electrical wiring, kitchen and two bathrooms, internal and external doors and floor coverings. The property also benefits from cavity wall insulation, roof insulation and sound insulation to the party wall. Fire plasterboard has been fitted to the kitchen to support the installation of a wood burning stove if required and windows have been replaced where required or replaced by double glazing. EPC rating TBC, Durham County Council tax band B.

A magnificent four bedroom property with the benefit of paddock and gardens and beautiful countryside views.

General Remarks

Tenure: Freehold
Services: Oil Central heating. Septic tank
Durham County Council Tax Band B

Buyer Identification Check

Should a purchaser(s) have an offer accepted on a property marketed by Carver Residential they will need to undertake an identification check. This is done to meet our obligation under Anti Money Laundering Regulations (AML) and is a legal requirement. We use a specialist third party service to verify your identity, this is not a credit check and will have no effect on credit history. The cost of these checks is £36 inc. VAT per buyer, which is paid in advance, when an offer is agreed and prior to a sales memorandum being issued. This charge is non-refundable.

Property Size Reference

Please note the property size is taken from the Energy Performance Certificate and may not take into account all rooms from the floorplan (due to unheated space not being calculated e.g. this may potentially exclude a conservatory and/or garage)

View Brochure

Location


Floorplan

Floorplan for Lanehead Cottages, Richmond Floorplan for Lanehead Cottages, Richmond

EPC

EPC for Lanehead Cottages, Richmond

Property Tour

Similar Properties

Hallgarth Court, Newsham, Richmond
For Sale

Hallgarth Court, Newsham, Richmond

3 Bed Link detached house For Sale
£440,000
Aldbrough St. John, Richmond
For Sale

Aldbrough St. John, Richmond

3 Bed Terraced House For Sale
£285,000
Newsham, Richmond
For Sale

Newsham, Richmond

3 Bed Cottage For Sale
£230,000

Get to Know You – The Carvers Way

Culture & How You Work With Others

A Little More You

Details