Greenbank Road, Darlington

4 bedroom Terraced House Sold STC

£220,000

  • 4 bedrooms
  • 2 bathrooms
  • 3 receptions
  • Key Information:
  • Council Tax: B

Key Features

  • Mid terraced LARGE Victorian beauty!
  • 3 Reception areas, 2 x formal lounge and a large Kitchen / Diner
  • 4 Spacious bedrooms
  • Traditional style family Bathroom, 1 ensuite and downstairs w/c
  • Attic bedroom with ensuite
  • Private walled garden
  • Large garage to rear offer off street parking
  • Central location, close to town centre, Hospital and all amenities etc.
  • Period features throughout

Description

Looking for a Character property...? Take a look at this Mid Terraced Victorian beauty.
Located on the popular tree lined street of Greenbank Road in Darlington, this exquisite terraced house offers modern living and period charm. With four spacious bedrooms, this period property is ideal for families or those seeking extra space. With two well-appointed reception rooms and a huge Kitchen / Diner providing the 3rd living space, this home has ample room for relaxing and entertaining, making it easy to host gatherings or enjoy quiet evenings at home.

The property boasts two bathrooms, a traditional style family bathroom on the first floor with a further ensuite to the bedroom on the uppermost floor. The ground floor also has a a downstairs w/c ensuring convenience for all residents. The traditional design and period finishes throughout the home create a welcoming atmosphere that is both stylish and functional.

Additionally, the property includes off street parking to the rear with a garage, a valuable feature in this desirable area being so close to the Darlington town center. With its prime location, you will find yourself within easy reach of all local amenities, schools, and parks, making it an excellent choice for those looking to settle in a friendly community.

This terraced house on Greenbank Road is not just a home; it is a lifestyle opportunity waiting to be embraced. Whether you are a first-time buyer or looking to upgrade, the size of this property is sure to impress. Do not miss the chance to call this beautiful property 'Home'.

GENERAL INFORMATION:

Tenure: Freehold
Services: Gas central heating, mains electric, water and drainage.
Local Authority: Darlington Borough Council (Tax Banding B)

Buyers Identification Checks

Should a purchaser(s) have an offer accepted on a property marketed by Carver Residential they will need to undertake an identification check. This is done to meet our obligation under Anti Money Laundering Regulations (AML) and is a legal requirement. We use a specialist third party service to verify your identity, this is not a credit check and will have no effect on credit history. The cost of these checks is £36 inc. VAT per buyer, which is paid in advance, when an offer is agreed and prior to a sales memorandum being issued. This charge is non-refundable.

View Brochure

Location


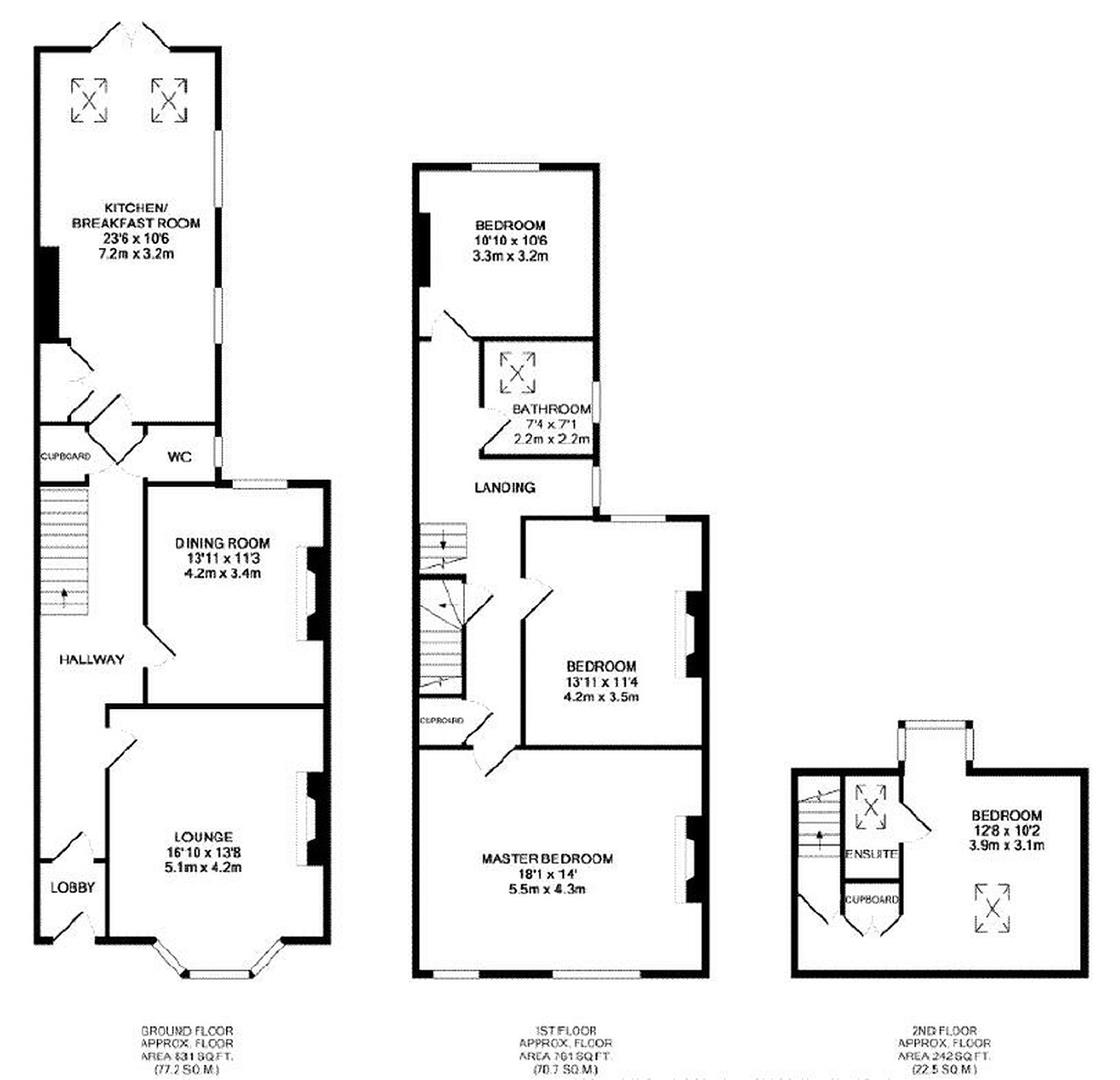
Floorplan

Floorplan for Greenbank Road, Darlington

EPC

EPC for Greenbank Road, Darlington

Similar Properties

Woodland Road, Darlington
For Sale

Woodland Road, Darlington

5 Bed Detached house For Sale
£500,000
Cleveland Avenue, Darlington
For Sale

Cleveland Avenue, Darlington

7 Bed Detached house For Sale
OIRO £775,000
Elton Road, Darlington
For Sale

Elton Road, Darlington

3 Bed Semi-detached house For Sale
£300,000

Get to Know You – The Carvers Way

Culture & How You Work With Others

A Little More You

Details