Northgate, Darlington

Property for sale

£385,000

  • Key Information:

Key Features

  • PRIME TOWN CENTRE POSITION
  • STRONG COVENANT PRODUCING £25,000 PAX
  • UPPER FLOORS EXPECTED TO RECEIVE CONSENT FOR 6 X APARTMENTS

Description

Town centre investment / development opportunity anchored by strong tenant covenant with planning consent for 6 apartments

Town centre investment / development opportunity anchored by strong tenant covenant with planning consent for 6 apartments

View Brochure

Location


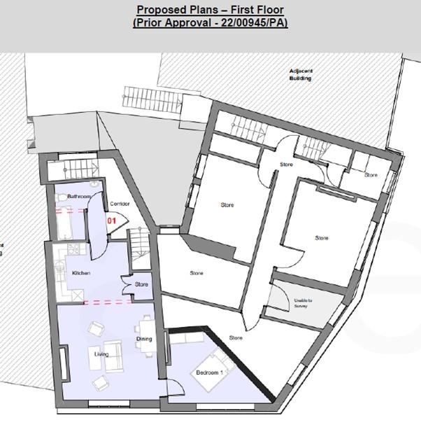
Floorplan

Floorplan for Northgate, Darlington Floorplan for Northgate, Darlington Floorplan for Northgate, Darlington Floorplan for Northgate, Darlington

Carvers Commercial

18 St Cuthberts Way, Darlington,
County Durham, DL1 1GB

Similar Properties

Newsham, Richmond
For Sale

Newsham, Richmond

3 Bed Cottage For Sale
£230,000
Lanehead Cottages, Richmond
For Sale

Lanehead Cottages, Richmond

4 Bed Semi-detached house For Sale
£475,000
Shetland Drive, Darlington
For Sale

Shetland Drive, Darlington

2 Bed Semi-detached house For Sale
Offers over £140,000

Get to Know You – The Carvers Way

Culture & How You Work With Others

A Little More You

Details