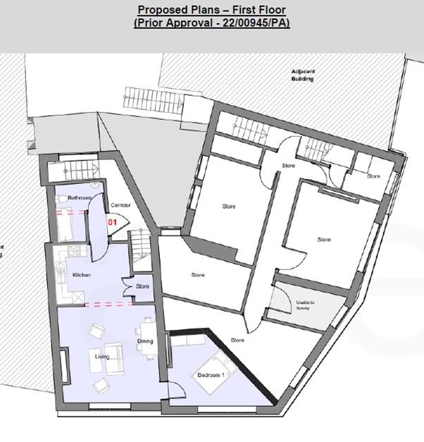
Town centre development opportunity held over first and second floors with planning consent for 6 apartments
View Brochure
18 St Cuthberts Way, Darlington,
County Durham, DL1 1GB