Victoria Road, Darlington

Office for sale

£145,000

  • Key Information:
  • Tenure: Freehold

Key Features

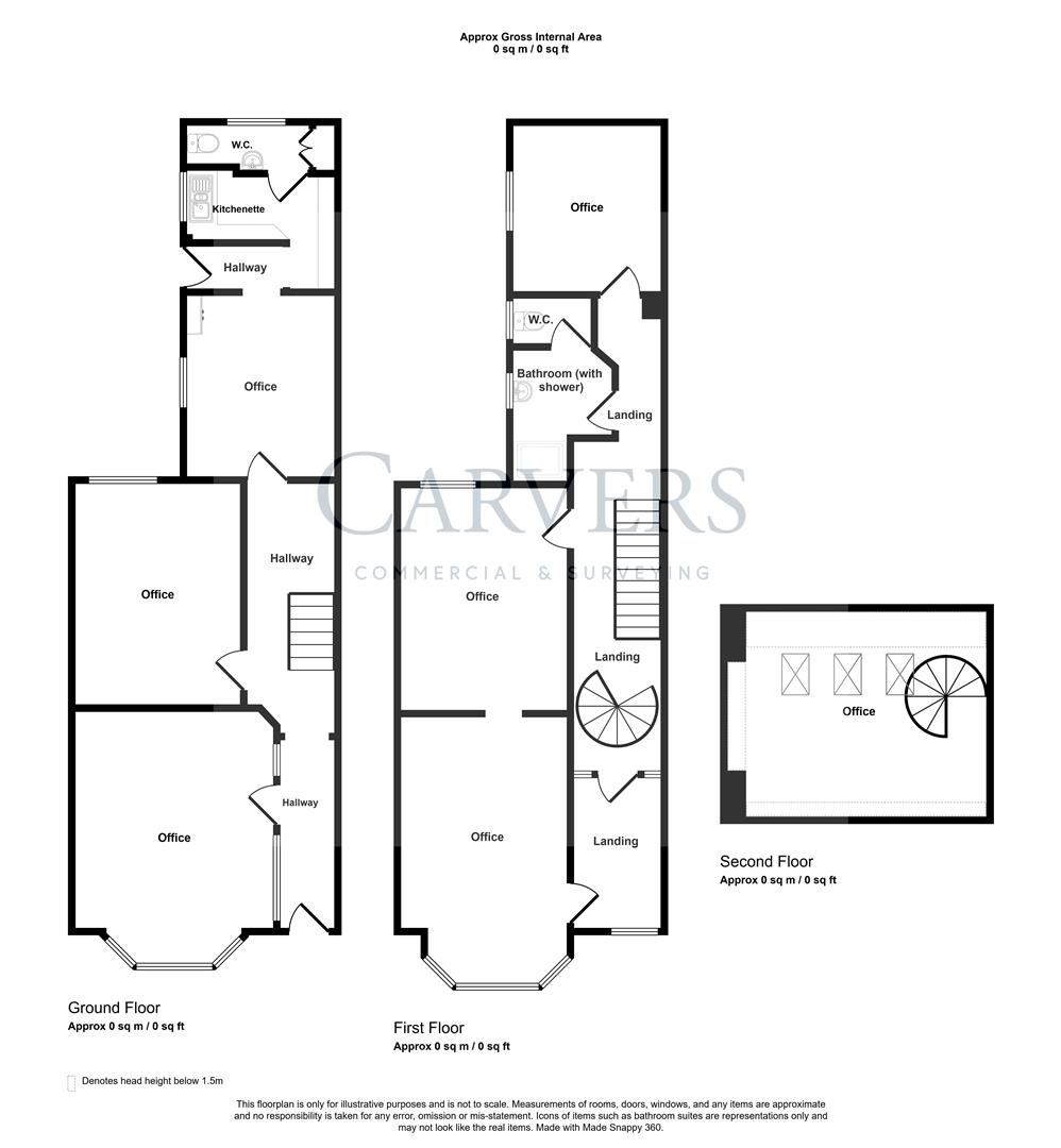
  • Town centre office premises – 1,209sq.ft.
  • Prominent position fronting Victoria Road and St Cuthberts Way
  • Well-appointed
  • Parking for one vehicle

Description

Town centre office premises with parking extending to 1,209sq.ft.

The property fronts Victoria Road on its roundabout with St Cuthberts Way providing well-appointed office accommodation over three floors.

There is parking for one car at the rear.

View Brochure

Location


Floorplan

Floorplan for Victoria Road, Darlington

Property Tour

Carvers Commercial

18 St Cuthberts Way, Darlington,
County Durham, DL1 1GB

Similar Properties

Mayfair Road, Darlington
For Sale

Mayfair Road, Darlington

Commercial Property For Sale
OIRO £85,000
Dodsworth Street and Alliance Industrial Estate, Darlington
For Sale

Dodsworth Street and Alliance Industrial Estate, Darlington

Light Industrial For Sale
OIRO £2,850,000
Chesnut Street, Darlington
Sold STC

Chesnut Street, Darlington

Light Industrial Sold STC
OIRO £215,000

Get to Know You – The Carvers Way

Culture & How You Work With Others

A Little More You

Details