Northgate, Darlington

Residential Development for sale

£135,000

  • Key Information:

Key Features

  • PRIME TOWN CENTRE POSITION
  • NEW 200 YEAR LEASE TO BE CREATED
  • EXPECTED CONSENT FOR 6 X 1 BED APARTMENTS
  • APPROX. 2,522SQ.FT.

Description

Town centre development opportunity held over first and second floors with planning consent for 6 apartments

View Brochure

Location


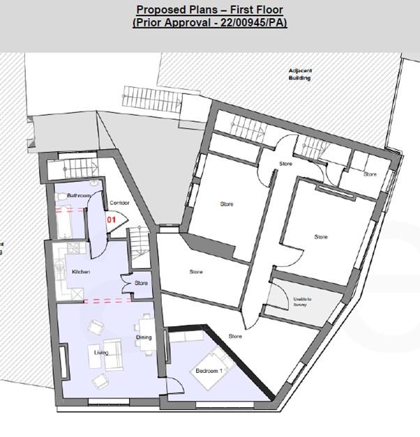
Floorplan

Floorplan for Northgate, Darlington Floorplan for Northgate, Darlington Floorplan for Northgate, Darlington Floorplan for Northgate, Darlington

Carvers Commercial

18 St Cuthberts Way, Darlington,
County Durham, DL1 1GB

Similar Properties

Seymour Street, Bishop Auckland
For Sale

Seymour Street, Bishop Auckland

Light Industrial For Sale
OIRO £145,000
2 Chancery Lane, Darlington
For Sale

2 Chancery Lane, Darlington

Office For Sale
OIRO £145,000
Galgate, Barnard Castle
Sold STC

Galgate, Barnard Castle

Residential Development Sold STC
OIRO £400,000

Get to Know You – The Carvers Way

Culture & How You Work With Others

A Little More You

Details